Anzeige
Mehr bezahlbarer Wohnraum in Marl
© focus finder - Fotolia
Teilen: mail

Mehr bezahlbarer Wohnraum in Marl

In Marl entsteht derzeit ein neues Wohngebiet entlang der Herzlia-Allee.

Veröffentlicht: Dienstag, 31.03.2026 04:24

Anzeige

Rund 240 Wohnungen und Häuser in Marl

Anzeige

Für das Projekt „Wohnen am Freer Bruch“ in Marl haben die ersten Bagger ihre Arbeit aufgenommen. Geplant ist ein modernes Viertel mit rund 240 Wohnungen und Häusern entlang der Herzlia-Allee. Die Stadt sagt: das sei ein wichtiger Schritt, um mehr bezahlbaren Wohnraum zu schaffen.

Anzeige
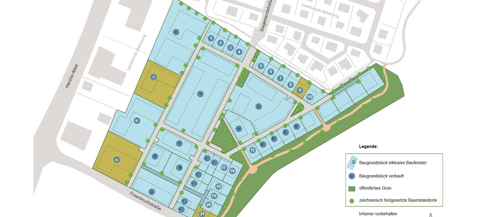
Mehr bezahlbarer Wohnraum in Marl
© BRAWO RE Development Münster GmbH
So soll das neue Wohngebiet Freer Bruch in Marl aussehen
Anzeige

Neue Mehrfamilienhäuser, Einfamilienhäuser und Reihenhäuser in Marl

Anzeige

In dem neuen Viertel in Marl wird es Mehrfamilienhäuser sowie Reihen- und Einfamilienhäuser geben. Auerdem ist auch eine neue Kita und eine Pflegeeinrichtung geplant. Das ganze Viertel wird klimaangepasst gebaut, mit begrünten Flachdächern und viel Regenwasserversickerung nach dem Schwammstadt-Prinzip. Das soll Überschwemmungen bei Starkregen verhindern.

Vermisstensuche mit Happy End in Datteln.

Anzeige
Anzeige
Anzeige